New Home Entrance
Building another entrance to your home can be a convenient way to improve access. You will need a permit to build any additional entrance or walkout from the basement. Grading permits to be issued by Development Engineering before applying for the associated building permit.
Permit requirements
| Project | Permit | Fee |
|---|---|---|
| Side-door entrance | Addition permit less than 40 meters squared | $672.50 |
| Walkout/walkup basement | Addition permit less than 40 meters squared | $672.50 |
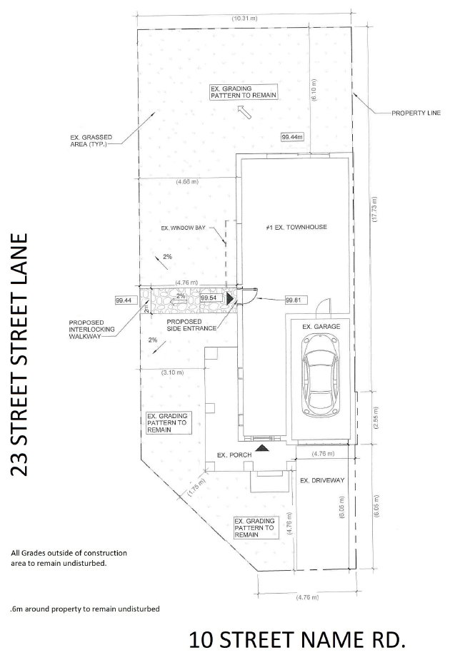
Side or Walkout (basement)
Documents required for submission:
**(all documents to be submitted in PDF format)
- Residential grading permit requirements (PDF) – see grading permit requirements
- Agent Authorization Form (PDF) – required if applicant is not the registered homeowner
- Toronto and Region Conservation Authority (TRCA) approval – if applicable
- Committee of Adjustment approval – if applicable
- Permit fee – includes two drawing reviews. Any additional reviews are subject to a fee as listed Fees and Charges By-law 251-2024 Schedule K (PDF).
For more information, please review lot grading notes (PDF) and City of Vaughan lot grading criteria.
Additional Resources
- Agent Authorization Form (PDF)
- Deficiencies and resubmission online user guide (PDF)
- Fees and Charges By-law 251-2024 (PDF)
- Lot grading notes (PDF)
- Pool and grading permit online submission user guide (PDF)
- Residential grading permit requirements (PDF)
- Example Drawing - Walk Up
- Example Drawing - Side Entrance